Paris Ve
Paris Habitat
701 m²
2.2 M €
Concours lauréat / Etudes en cours
Equipe : Oyapock architectes, mandataire (suivi études : Rémy Raffourt) / Legnus, structure / Ecallard, économie / Corétude, fluides / Aïda, acoustique
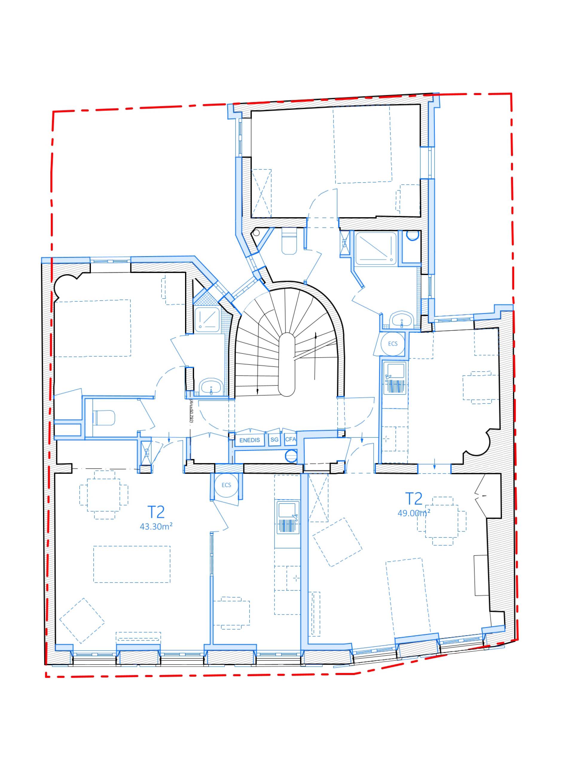
Restructuration lourde d'un édifice à pan de bois du XIXème siècle dans le 5ème arrondissement de Paris
Le bâtiment du 34 rue Cardinal Lemoine dans le 5ème arrondissement de Paris, édifice à pan de bois du XIXème siècle récemment acquis par Paris Habitat, présente un tassement différentiel important engendrant une différence altimétrique des planchers jusqu’à 30cm entre la façade sur rue et la façade sur cour. La restructuration lourde de cet immeuble de 12 logements et 2 commerces répartis sur 6 étages et un niveau de cave nécessite donc des travaux important pour assurer sa stabilité et améliorer sa viabilité (reprise en sous œuvre, changement des planchers bois, remplacement de la charpente et de la couverture) mais aussi pour améliorer le confort de vie des futurs habitants (reprofilage du comble afin d’augmenter la hauteur du dernier étage, isolation par l’extérieur sur cour et par l’intérieur sur rue, changement des fenêtre bois, augmentation des surfaces des logements, curage et végétalisation de la cour…) et pour sa mise aux normes techniques (installation d’équipements performants : ballon thermodynamique avec récupération de chaleur sur l’air extrait de la VMC hygrovariable, radiateur électrique basse consommation, récupérateur d’EP...). Dans une optique de réduction de l’impact carbone de ce projet impliquant un volume de démolition important, l’emploi de matériaux et produits biosourcés et issues du réemploi (in situ ou ex situ) est systématisé et les matériaux et leur technique de mise en œuvre ont été choisis pour leur cohérence avec les caractéristiques du bâti ancien (isolation par l’extérieur en laine de bois sur pan de bois).
Réhabilitation de 12 logements et 2 commerces à Paris Ve - Coupe transversale - croquis Zareen Kadimi
Réhabilitation de 12 logements et 2 commerces à Paris Ve - Photo rue Cardinal Lemoine
Réhabilitation de 12 logements et 2 commerces à Paris Ve - Plan R+4 démol
Réhabilitation de 12 logements et 2 commerces à Paris Ve - Plan R+4 après travaux